
| Suppliers | Expiration date | Price (Toman) | Minimum order (MOQ) | City | Phone number |
|---|---|---|---|---|---|
The price is not recorded | |||||
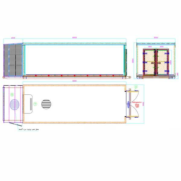
Due to the difference in temperature required to store different products, the design of Mitt Wand refrigerators can be designed for temperatures above zero or below zero, which is why the wall thickness of the main task of maintaining the temperature inside the canopy is at least 10 cm. Is. These walls are made of Mammoth sandwich panel with high density and high quality polyurethane foam. The type of coating inside and outside of these panels is pre-painted alloying sheet, which in addition to high resistance to rust and other environmental conditions, is also approved by the Ministry of Health and its maintenance through permanent washing is possible and very easy.